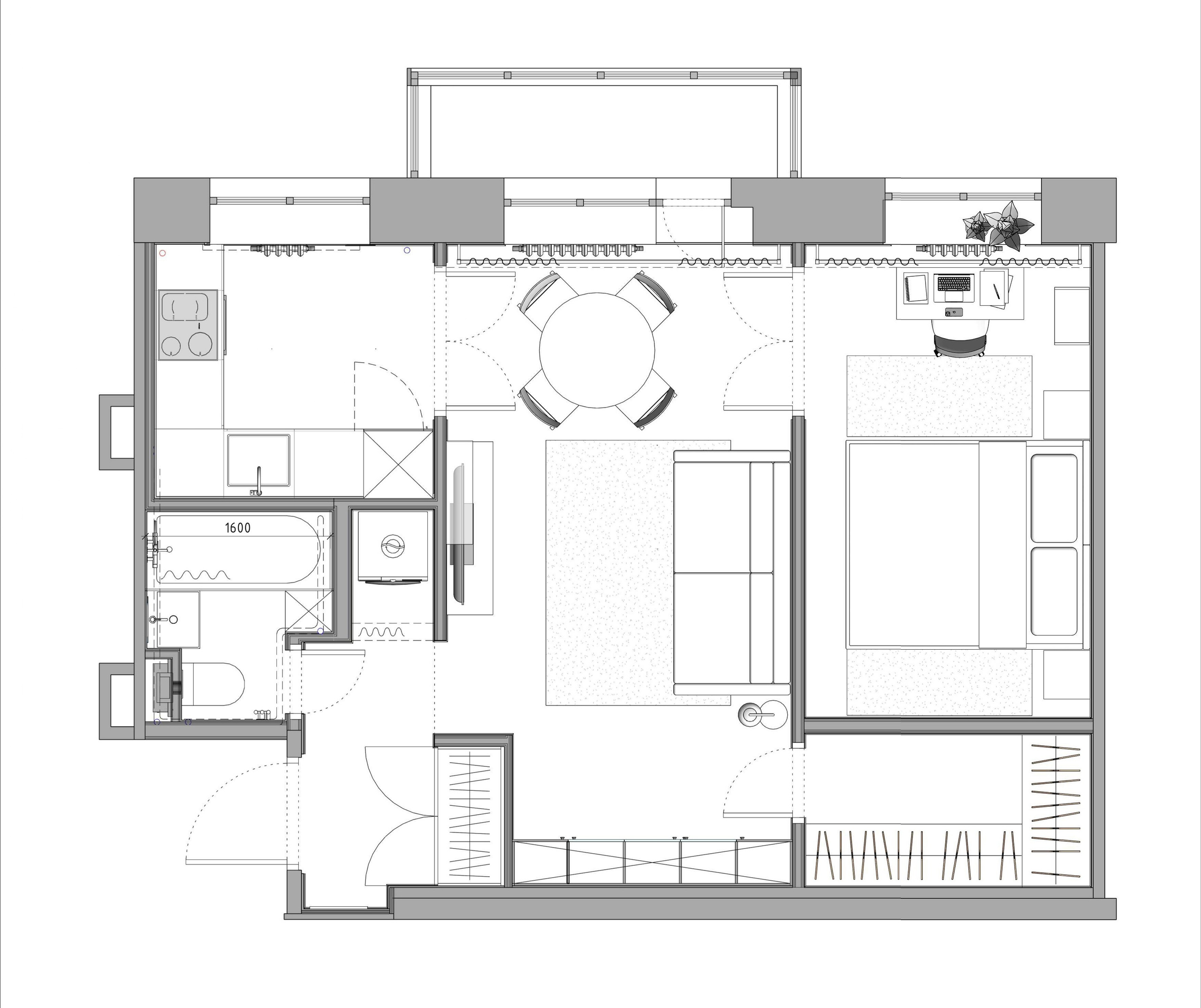
Проект: Фрунзенская
Местоположение: Москва, Россия
Дизайнер: Заркуа Анастасия
Фотограф: Максимов Максим
Стилист: Олейникова Ольга
Площадь: 45 м²
Год реализации: 2025



























Проект: Фрунзенская
Местоположение: Москва, Россия
Дизайнер: Заркуа Анастасия
Фотограф: Максимов Максим
Стилист: Олейникова Ольга
Площадь: 45 м²
Год реализации: 2025


























